TF1 Info

LOCAL COMMERCIAL A LOUER 900 €HT A MONTEYNARD (ISERE - MATHEYSINE)

Monteynard - 38770

Date de publication : 04/03/2026 à 17h

Alimentation particulier

Prix non renseigné

Contact

Pour toutes demandes de modifications concernant cette annonce, veuillez envoyer un message à l’adresse suivante : sosvillages@tf1.fr

Pour toute demande d’information complémentaire concernant cette annonce, merci de contacter directement le propriétaire de l’annonce (voir ci-dessus)

Description

UN LOCAL RÉNOVÉ AU CŒUR DU VILLAGE POUR UNE ACTIVITÉ UTILE AU TERRITOIRE

Localisation : Monteynard (Isère, 38)
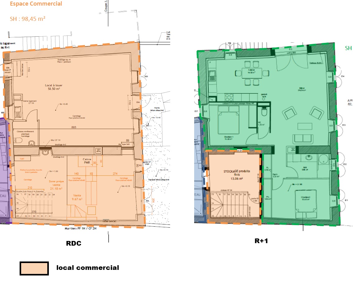
Superficie : 111m2 de local commercial

Au centre-bourg de Monteynard, à 30 minutes au sud de Grenoble, un local commercial rénové de 111 m² attend son nouveau projet.
Ancien café emblématique du village, la Maison Mollière a été réhabilitée pour accueillir des activités ancrées dans l’Économie Sociale et Solidaire (ESS).

Vous avez un projet utile au territoire ?
Vous souhaitez entreprendre en milieu rural dans un cadre naturel exceptionnel
Vous croyez à la force du collectif ?

LE LOCAL EN BREF

- 98 m² en rez-de-chaussée (espace commercial)
- 13 m² à l’étage (bureau / réserve)
- 4 places de stationnement
- Locaux rénovés
- Réseaux déjà adaptés pour une activité type boulangerie (modifications possibles)
- 3 (ou 4) logements (gérés par un bailleur social)
- Bail commercial 3-6-9
- Loyer : 900 €HT (ajustement en fonction des derniers travaux qui seront engagés)
- Équipements spécifiques à votre activité à votre charge

PRÉSENTATION DE VILLAGES VIVANTS – CRITÈRES DE RECHERCHE

Coopérative immobilière, rurale et solidaire, Villages Vivants rassemble des citoyens, entreprises et collectivités qui s’engagent avec leur épargne pour acheter, rénover et louer des locaux à des entreprises de l’économie sociale et solidaire dans les territoires ruraux. Villages Vivants intervient aussi par la formation et l’accompagnement auprès des collectivités et des porteurs de projets.

Nous recherchons un projet d’activité :
- Relevant de l’Économie Sociale et Solidaire
- Utile aux habitants
- Économiquement viable
- Idéalement porté par un collectif

Besoins prioritaires identifiés :
- Boulangerie
- Épicerie
- Multiservices
- Autres activités possibles : artisanat, santé, services de proximité, culture…

Le local pourra être partagé entre plusieurs structures si cela permet d’augmenter les services rendus aux habitants. Pour cela, la création d’une association sera souhaitée afin d’assurer la gestion locative et veiller aux bons usages entre les structures. Cette association devient alors le locataire unique de Villages Vivants. L’association sous-loue aux occupants par le biais d’une convention de mise à disposition.

POURQUOI S'INSTALLER ICI ?

- Local rénové en centre-bourg
- Commune attractive (lac et tourisme)
- Municipalité engagée
- Fort besoin en services
- Accompagnement dédié

CE QUE PROPOSE VILLAGES VIVANTS

- Loyer progressif
- Appui au montage de projet
- Mise en réseau locale
- Accompagnement dédié

CONTENU DE LA CANDIDATURE

- Dossier libre (max 10 pages)
- Prévisionnel à 3 ans, présentation du projet et des porteurs, adéquation avec les valeurs de Villages Vivants
- Calendrier : Réception des candidatures au fil de l’eau

Candidatures à envoyer à : g.desorme@villagesvivants.com

Contact pour questions et documents complémentaires : g.desorme@villagesvivants.com / 07 49 78 47 01

En savoir plus : https://villagesvivants.com/actus/local-commercial-a-louer-a-monteynard/


Les autres annonces "Alimentation" de la region Auvergne-Rhône-Alpes

Boulangerie - Pâtisserie à reprendre

Boulangerie - Pâtisserie à reprendre

Langeac - 43300

Alimentation particulier
Supérette alimentaire

Supérette alimentaire

Le Donjon - 03130

Alimentation particulier
Epicerie - restaurant

Epicerie - restaurant

Le Haut-Bréda - 38580

Alimentation particulier

Les annonces de la région Auvergne-Rhône-Alpes

DESCRIPTION TECHNIQUE


Fonds de commerce de boulangerie-pâtisserie dans la commune de Langeac (43300) à reprendre pour cause de changement d’activité, comprenant du matériel professionnel complet dans un excellent état et permettant l’exploitation du commerce dès la reprise, idéal pour un couple. 

Ce commerce bénéficie d’un très bon emplacement, faisant l’angle au niveau d’une des trois rues les plus commerçantes de Langeac, à quelques pas de la mairie et entouré d’autres commerces de proximité amenant beaucoup de passage (épicerie de centre, boucherie, bijouterie, bar, restauration rapide, …). Par ailleurs, deux entrées existent sur le local en plus de l’entrée principale en boutique (une pour l’atelier boulangerie et une pour l’atelier pâtisserie). La superficie totale est de 120m² répartie comme suit : 40m² pour la partie pâtisserie, 40m² pour la partie boulangerie et 40m² pour la partie boutique. En plus de ces 120m² une réserve de 60m² à l’étage est comprise dans le bail. Le loyer est quant à lui de 761 €/mois.

Au niveau du matériel, la partie boulangerie comprend : un four électrique de 3 niveaux de 2001 en très bon état (en contrat avec le tarif particulier et un compteur à part, ce qui limite les charges d’énergie), 3 chambres froides, une diviseuse, une façonneuse, un repose pâton, un pétrin, une tour réfrigérée, un refroidisseur d’eau et tout le petit matériel habituel. La partie pâtisserie comprend quant à elle : une plonge, un frigo, un conservateur et un surgélateur, un laminoir, une tour réfrigérée, un four rotatif au gaz de ville, un batteur, une tritico, une machine à glace italienne. Est également compris dans le fonds tout le matériel de boutique (trancheuses, vitrines, …) et les rangements de la réserve.

Le commerce fonctionne actuellement avec un boulanger, un pâtissier et trois serveuses, pour une ouverture 6j/7 de 6h à 19h, et propose la gamme classique de la boulangerie pâtisserie, salades et sandwichs pour les travailleurs, glaces l’été… Repris en 2015, son chiffre d’affaires n’a fait qu’augmenter depuis pour atteindre 270 000 € au dernier bilan. Les charges sont de 630 €/mois d’électricité et 300€/mois de gaz.
4 appartements existent au-dessus du commerce, leurs disponibilités est à discuter avec le propriétaire des murs.
Prix de vente du fonds : 130 000 €.

TERRITOIRE


Cette boulangerie est située au sein de la Communauté de communes des rives du Haut-Allier (CCRHA), dans le département de la Haute-Loire, récemment élu département préféré des français au plan de l’attractivité touristique. Le territoire de la CCRHA compte 16 000 habitants et est sillonné du nord au sud par la rivière Allier. Le paysage aux multiples nuances de vert et de bleu alterne gorges et plateaux volcaniques typique de l’Auvergne, garantie d’un cadre naturel exceptionnel et préservé. Son patrimoine historique et architectural complète son charme.  

La commune de Langeac, dont la population est d’environ 3 500 habitants, dispose de nombreux artisans, commerces, associations et services publics. De nombreuses entreprises et deux zones d’activité sont sources d’emplois et d’attractivité économique. De plus, le camping trois étoiles connait une belle fréquentation en augmentation depuis les 4 dernières années (pics à 1 200 personnes/j en été). Traversée par l’Allier, Langeac offre un cadre naturel reposant et charmant, renforcé par la présence de l’île d’Amour qui participe à son attractivité, notamment touristique. 
Le territoire du Haut-Allier est facilement accessible depuis l'autoroute A75, à 1h de Clermont Ferrand et 3h de Montpellier. L’axe routier principal est la N 102 prolongée par la N 88 qui le relie à St Etienne et Lyon en 2h30. Des gares de proximité assurent la desserte ferroviaire sur la ligne Paris, Clermont-Ferrand, Nîmes via Langeac, le bourg-centre. Langeac est par ailleurs située à 30 minutes du Puy en Velay, préfecture du département. 

Disposant de nombreux services et commerces le territoire répond à tous les besoins principaux de la vie dans un rayon de moins de 20 min en voiture. Le tissu associatif est aussi très développé (plus d'une centaine d'associations) et propose des activités culturelles, sportives, de loisirs... Le Haut-Allier offre ainsi une vraie qualité de vie à ses habitants. Un solide secteur industriel et agricole complète le bassin d’emplois, ainsi qu'une économie touristique forte.

AIDES INSTALLATION 


L'ensemble de la CCRHA se trouve en ZFRR (zone de revitalisation rurale), ce qui induit une exonération d'impôts sur la société pendant 5 ans.
Des aides financières liées à la reprise d'une boulangerie peuvent être attribuées par la Communauté de communes, la Région et l'Europe. 
Cette boulangerie-pâtisserie n’attend plus que vous !!
Contact : 
Propriétaires : nicolassanial2511@gmail.com / 06.26.27.41.26
Communauté de communes : Joseph LAURENT / j.laurent@rivesduhautallier.fr / 06.66.44.48.06

Boulangerie - Pâtisserie à reprendre

Langeac - 43300

Alimentation particulier
À vendre, fonds de commerce restaurant/bar situé à Chaudeyrolles, au pied du Mézenc, dans un secteur touristique (station de ski, gîtes, nature).
Restaurant comprenant :
40 places en salle
30 places en terrasse
Bar en bois
Grande cuisine équipée
2 réserves
Sanitaires
Matériel en bon état
➡️ Licence IV attachée aux murs (non incluse dans la vente)
💼 Vente pour cause de retraite
💶 Prix : 25 000 € TTC
📞 Pour plus d’informations, me contacter

👉 Coup de cœur ❤️ Restaurant / Bar en pleine nature avec vue imprenable

Chaudeyrolles - 43430

Hôtellerie et restauration particulier
À vendre Supérette alimentaire,située sur la commune du donjon (03),entre Digoin et Vichy. Dernier CA annuel :707560 HT Loyer mensuel ttc :417€ Prix de vente : 180000€ 
Pour cause retraite 
Pour plus de renseignements veuillez nous contacter

Supérette alimentaire

Le Donjon - 03130

Alimentation particulier
Vente fonds de commerce de cette belle épicerie qui propose de la restauration sur place, la vente de tabac et bar grâce à la licence IV.

Situé dans la commune du Haut Breda entre Allevard et les 7 Laux, ce commerce est le coeur du village.

Au dernier étage vous avez la possibiité d'avoir votre hébergement.

Les propriétaires vendent à contre coeur à cause de raisons de santé.

Epicerie - restaurant

Le Haut-Bréda - 38580

Alimentation particulier