TF1 Info

RECHERCHE DEUX KINES POUR MAISON MEDICALE

Violay - 42780

Date de publication : 21/05/2025 à 15h

Santé collectivite

Prix non renseigné

Contact

Pour toutes demandes de modifications concernant cette annonce, veuillez envoyer un message à l’adresse suivante : sosvillages@tf1.fr

Pour toute demande d’information complémentaire concernant cette annonce, merci de contacter directement le propriétaire de l’annonce (voir ci-dessus)

Description

La mairie de VIOLAY RECHERCHE
Deux kinés pour sa maison médicale.
Située entre Loire et Rhône, à 10 km du péage de Tarare sur l’A89, à 30 mn de Lyon et Roanne et 45 mn de St Etienne, Violay est labellisée Station Verte et Village Sport Nature. Avec ses 1.300 habitants, et forte de ses 470 emplois, elle rayonne sur les villages alentours grâce à son dynamisme commercial et touristique : Boulangerie, multi-service, bar, point poste, banque, fleuriste, marchand et fabricant de chaussures, mais aussi pharmacie, médecin, podologue, orthopédiste, infirmiers, clinique dentaire, un EHPAD de 55 résidents, etc. De nombreuses activités sport nature accueillent les visiteurs (Station trail, parc aventure, parcours sportifs, GR7, aire parapente, VTT descente, etc..)
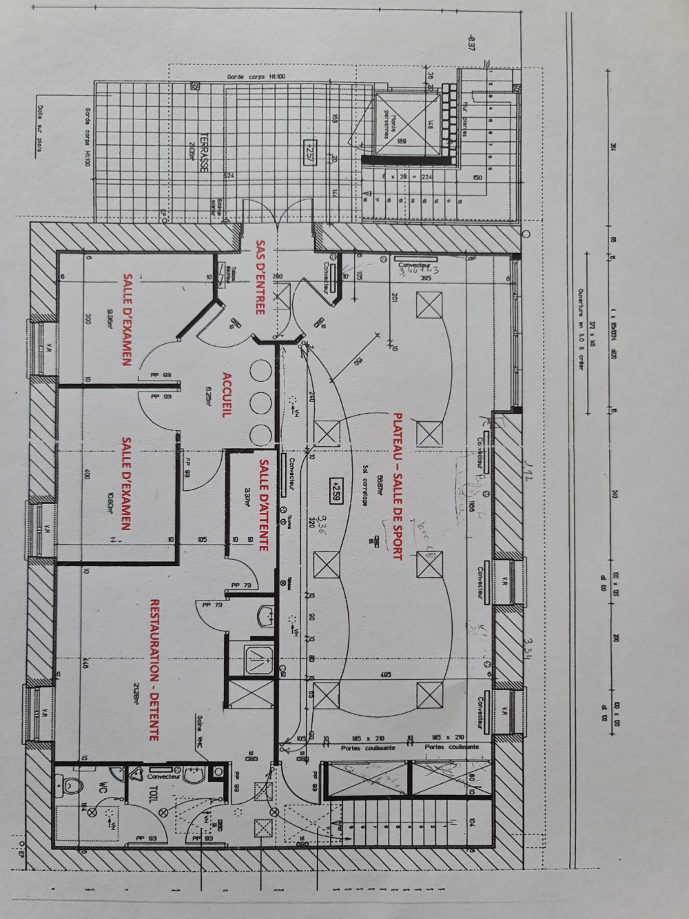
La maison médicale offre un ensemble idéal en deux parties : la première avec accueil, salle d’attente, deux salles d’examen, salle de restauration- détente et la seconde en plateau-salle de sport de 60 m², pour l’installation confortable de deux kinés. Loyer : 840 € / mois
Pour tout renseignement, prendre contact au 0673580657 ou par mail : maire.violay@orange.fr ou mairie@violay.fr
Pour plus d'informations : www.violay1004.fr


Les autres annonces "Santé" de la region Auvergne-Rhône-Alpes

SAUGUES RECHERCHE SON MEDECIN !

SAUGUES RECHERCHE SON MEDECIN !

Saugues - 43170

Santé collectivite

Les annonces de la région Auvergne-Rhône-Alpes

Belle opportunité de gérance au coeur du Parc Naturel Régional Livradois-Forez en Auvergne : auberge située au coeur du village d’Isserteaux à proximité immédiate de l’école et de la mairie, les locaux bénéficient d’un passage régulier et d’un lien direct avec la vie locale où les relations humaines occupent une place essentielle. Des travaux d’embellissement de la traverse du bourg sont prévus dès ce printemps et s’achèveront fin août 2026, renforçant l’attractivité et la visibilité de l’auberge.

Au sein de la communauté de communes Billom communauté et au coeur du Parc Naturel Régional Livradois-Forez, la commune d’Isserteaux séduit par son cadre de vie paisible et verdoyant, typique du Livradois-Forez. Ce village à taille humaine (400 habitants) bénéficie d’un cadre naturel de qualité, propice aux activités de plein air et à une vie quotidienne au calme, tout en restant à proximité des pôles urbains du territoire.

Isserteaux s’appuie sur une vie locale conviviale, portée par un tissu associatif très actif (activités artisanales, sportives et culturelles, marché de pays…) et une population attachée à son territoire. Entre nature, simplicité et qualité de vie, Isserteaux offre un environnement favorable pour s’installer et développer une activité au plus près des habitants.

Située au cœur du bourg d’Isserteaux, à proximité immédiate de l’école et de la mairie, cette auberge bénéficie d’un emplacement central, au plus près de la vie locale et d’un passage régulier. Des travaux d’embellissement du centre-bourg viendront prochainement renforcer son attractivité et sa visibilité.

L’établissement se compose de locaux complets et fonctionnels, adaptés à une activité de restauration, de bar et d’une espace multi-services. Il comprend :
- Un espace bar convivial, véritable lieu de rencontre
- Une cuisine équipée (four mixte, piano 4 feux, plancha, friteuse, réfrigération…)
- Une salle de restauration avec mezzanine d’environ 40 couverts
- Une terrasse pour la saison estivale
- Un accès possible à la salle des fêtes pour des événements
- Des services complémentaires (dépôt de pain, journaux, gaz, timbres)

Un logement attenant de type F4 d’environ 70 m² complète l’ensemble, permettant de concilier vie professionnelle et personnelle.

L’activité actuelle génère un chiffre d’affaires d’environ 110 000 €, majoritairement en restauration (85 %) avec un potentiel de développement en élargissant les horaires et les jours d’ouverture.
Le loyer global (commerce + logement) est fixé à 600 € TTC par mois, offrant une opportunité accessible pour un projet de reprise.
Ce lieu, au cœur de la vie communale, dispose d’une clientèle locale fidèle et constitue un véritable point de rencontre pour les habitants, avec un fort potentiel pour développer une activité conviviale et ancrée dans le territoire.

Le projet est idéal pour un professionnel souhaitant :
- S’installer au cœur d’un village dynamique et convivial
- Développer une activité de restauration/bar avec services de proximité
- Allier cadre de vie agréable et projet professionnel grâce au logement attenant
- Une belle opportunité pour entreprendre en Livradois-Forez et faire vivre un lieu central du territoire.

Pour déposer votre candidature (CV – lettre de motivation + références et dossierde présentation)
Coordonnées : Mairie d’Isserteaux – 04 73 70 90 64 – mairie.isserteaux@wanadoo.fr
AVANT le 30 avril 2026

Il est possible d’être accompagné techniquement et/ou financièrement par le Réseau Initiative, France Active, le Parc Livradois Forez, une coopérative d’activité, la CMA, la CCI ou la BGE. Il existe également une aide destinée aux petites entreprises du commerce, à l’artisanat et aux services avec points de vente, en co-financement entre la Communauté de communes Billom Communauté et la Région Auvergne Rhône-Alpes.

Auberge multi-services communal clé en main + habitation

Isserteaux - 63270

Hôtellerie et restauration collectivite
A vendre murs et fond de commerce de Restaurant et Cave à vins  "Le PHOENIX"
Situé au sud Cantal proche du Lot (Figeac) et l 'Aveyron (Decazeville).
L 'Etablissement est composé de 2 immeubles  separés de 2m  et communiquants.
L un est constitué de 2 niveaux de 100m2 environ l ' autre de 3 niveaux de 70m2 environ.
Le restaurant est situé au coeur du village de 600 habitants face à la place l eglise servant de parking.
Ce village bénéficie de commerces environnants ,boucherie, boulangerie, épicerie, coiffeur...etc
Ecole sur place et transports en communs réguliers desservant Aurillac.
Le restaurant  est ouvert 7 jours sur 7 les midis et les vendredis et samedis soirs .
Nous réalisons une cuisine simple et goûteuse basée sur les spécialités régionales ( Truffade, Aligot, Pounti, Farçous, Tripoux, etc...)
Cet établissement a su fidéliser une clientèle locale fidéle avec les menus du jour.
Il est composé: 
En rez de chaussée
1 salle de restaurant d'environ 80 couverts.
1 deuxieme salle de  20 couverts
A l Etage
 1 troisieme salle de 35 couverts et une terrasse couverte de 15 couverts.
1 piece de 10m2 servant de mini plonge
1 espace vestiaire avec douche et Wc pour le personnel.
1 espace toilettes pour la clentéle. 

La cuisine est relativement spacieuse environ 40m2 et bien équipée .
Elle est située au centre permettant de desservir aisement les différentes salles.
La plonge env 10 m2 est équipée de 4 lave vaisselle.

Pas de travaux à prévoir.
Pas de personnel à reprendre
CA actuel entre 200000 et 300000€
Village en ZRR  Aides ( CC, CCI, Etat...)
Le prix indiqué comprends les 2 immeubles et le fond de commerce)

Restaurant de village Cantal

Maurs - 15600

Hôtellerie et restauration particulier
Vous souhaitez reprendre une jolie supérette dans une belle bourgade touristique et de caractère du Cantal, située sur la route du Lioran.
Très bon emplacement, parking, flux de clientèle conséquent sur un axe très passant ; nombreuses habitations aux alentours et commerces complémentaires à proximité.
Fort impact saisonnier d’avril à octobre (camping, aire de camping-car, chemin de Compostelle, tourisme de randonnées, marchés d’étés, fêtes patronales, nombreuses résidences secondaires…).

Il vous est proposé :
- Un magasin de surface de vente de 130m² dont 30m² de réserve, bureau et sanitaires.
- Un camion de tournées avec aménagement récent et optimisé (incluant un frigo positif).
- Une fourgonnette 4x4 pour les livraisons ponctuelles

CA TTC de 440 000 € au dernier bilan, en constante progression.
Loyer mensuel de 400 €.
Vente du fonds de commerce à 103 000 €.
Pas de frais d’agence !
40 000 € d’apport requis.
Exploitation idéale en couple ou duo.

Magasin clé en main, pas de concurrence directe à proximité.
Services en place : fromage et charcuterie à la coupe, produits locaux, souvenirs, dépôt de pain, gaz et Relais Pickup.
Les tournées en camion parcourent les montagnes environnantes et sont assurées du mardi au samedi, avec un parcours différent chaque jour. La clientèle est très fidèle car ce service est historique (60% du CA actuel total) ; il y a possibilité également d’augmenter la zone de chalandise.
Pas de personnel à reprendre et commerce situé dans une zone ZFRR, ce qui permet d’obtenir des exonérations fiscales très avantageuses.

Epicerie rurale avec camion ambulant

Ferrières-Saint-Mary - 15170

Alimentation particulier
Dans un village classé LES PLUS BEAUX VILLAGES, boutique 55 m2 avec arrière cuisine et petite cours. La vitrine est grande et donne dans la rue principale.A l.étage appartement T4 _ 128 m2 comprenant une buanderie avec wc, cuisine aménagée et pièce à vivre, à l.étage 3 chambres avec salle de bain et wc et une mezzanine avec un coin chambre.

Commerce

Blesle - 43450

Autres particulier